
当前位置: P站免费版振动筛厂家 > 新闻资讯 > 行业新闻
螺旋输送机如何清理粘壁 螺旋输送机看起来很简单,毕竟P站免费版可以看到这些产品结构并不复杂。与那些传统的机械机床相比,输送机无论是从传动原理、部件还是结构复杂程度来说,都是比较简单的产品,这也使得P站免费版更倾向于使用产品。 螺旋输送机启动前,要仔细的检查它,防止异物落入输送机,造成螺旋板损坏或螺旋轴断裂,然后清洁设备内部。材料通过螺旋叶片运输,因此材料不会随着螺旋输送机叶片旋转的力是材料本身的重量和螺旋输送机壳对材料的摩擦力。 螺旋输送机是一种输送设备,设备中一定量的物料在使用后不完全排出是必然的
4类P站在线观看免费安装位置 P站在线观看免费的安装位置需要依据使用需求来确定,不可简单决定,有三种主流安装模式以及一种特殊安装模式。 (1)安装在箱体上侧(上振式) 这种装置方法比较特殊,关于直线筛设备的出料口高度、宽度都有要求的企业,如要求出料口离地面的高度要尽 量低一些等,那么振荡电机不论是装置在底部还是两侧都不能达到要求,这时就可以将振荡电机装置在设备的顶部中间方位,这样既不增加设备的宽度,又不影响下降设备出料口的高度。这种装置方法在重型P站在线观看免费最为常见,如矿筛、脱水筛。 (2)箱
安装振筛机时如何调整筛箱的纵向倾斜度 跟着科学技术的前进,许多工业领域将运用振筛机。 顺畅运用和装置是许多企业重视的问题。 今天,新乡市P站免费版机械有限公司将告诉您如何装置振筛机以节省时间和精力。 将振筛机盒装置到支架或悬架上。 装置后,应根据指定的倾斜视点进行调整。 对于悬挂式筛网,应一起调整筛箱倾斜度和筛箱主轴水平。 通常,首要调节水平高度以消除筛箱的偏转。 水平校正后,调整筛箱的纵向倾斜度。 振荡阻隔绷簧的力应该是均匀的,并且能够经过测量绷簧的紧缩来判断力。 通常,两组绷簧在进给端
滚筒筛厂家-滚筒筛要想运行稳定摆放角度如何确定?(滚筒筛及价格) 滚筒筛的安装步骤是什么 1、滚筒筛预埋钢板。安装前应按设备安装图的要求预埋钢板,要求预埋钢板的上平面位于同一平面上。安装所需的预埋钢板、底脚螺栓等均由安装单位自备。 2、筛体的安装。根据设备进料口、出料口的位置布置,对筛体安装位置进行确定。 3、安装基础支架。将筛体两端通过吊装安装在基础支架上,并将筛体安装角度调整至设计角度,最后进行固定焊接。 4、连接进料口和出料口。 5、连接筛体下部支架密封板。 6、用手转
滚筒筛厂家-滚筒筛型号参数及详细图纸和尺寸(滚筒筛型号) 滚筒筛厂家 河南P站免费版滚筒筛,是一代新型的筛料设备。滚筒筛主要有电机、减速机、滚筒装置、机架、密封盖、进出料口组成。滚筒筛装置倾斜安装于机架上。 电动机经减速机与滚筒筛装置通过联轴器连接在一起,驱动滚筒装置绕其轴线转动。当物料进入滚筒装置后,由于滚筒装置的倾斜与转动,使筛面上的物料翻转与滚动,使合格物料经滚筒外圆的筛网排出,不合格的物料经滚筒末端排出。 滚筒筛工作原理 由于物料在滚筒内的翻转、滚动,使卡在筛孔中的物料可被弹出,防止
滚筒筛厂家-滚筒筛沙机-原理特点介绍 滚筒筛厂家简述滚筒筛沙机原理特点 滚筒筛沙机广泛用于混凝土搅拌站站、路桥工程、建筑工程施工、采竞技场、煤场、粮管所等,是节省人力资产提高 建筑施工品质,可对河沙、强风化砂、体制沙石等原料进行二次清理工作中。加快工程进度、提高经济效益的工业设备。按动力系统分为电动筛沙机和柴油发动机筛沙机:按给料的是是多少分为16-20型筛沙机、30型筛沙机和50型筛沙机。 滚筒筛沙机由电机、输送皮带、料斗、传筛、传送杆等一部分组成,是石料、煤炭、细砂等-切混料的选择提
往复式给料机厂家解说其必须了解的特点(往复式给料机的设计) 有朋友问往复式给料机厂家解说其必须了解的特点今天针对这个问题做下分享,让您了解往复式给料机厂家解说其必须了解的特点相关信息和答案! 自流往复式给料机是为满足大流量物料输送要求而研制的新型给料机。其新颖的工作原理和结构形式,不但能满足大流量给料系统的需要,而且与K型往复式给料机相比,极大提高了整机工作效率和工作可靠性,扩大了给料量的调节范围,具有显著的节能优点。 (1)相对于以往K系列给料机而言,其生产能力大,体积小、重量轻,便于
双质体振动放矿机与振动给料机有哪些区别?(双质量振动系统状态方程) 有朋友问双质体振动放矿机与振动给料机有哪些区别?今天针对这个问题做下分享,让您了解双质体振动放矿机与振动给料机有哪些区别?相关信息和答案! 双质体振动放矿机与振动给料机有哪些区别? FZC振动放矿机是一款口碑极好的振动给料机,该设备利用振动电机主轴两端的偏心块在旋转运动中所产生的离心力来得到激振力,从而驱动设备的台面和物料作周期性往复振动,不仅出矿效率高,而且还保证了出料均匀容易控制,是一款节省能源的好设备。 振动放矿
矿用脱水筛出料慢的原因是什么?(脱水筛 给料机) 有朋友问矿用脱水筛出料慢的原因是什么?今天针对这个问题做下分享,让您了解矿用脱水筛出料慢的原因是什么?相关信息和答案! P站免费版分享过一篇有关脱水筛网缓慢排出原因的文章,但没有告诉您解决方案之前,现在我将向所有人解释关于缓慢排出的解决方案,以便每个人都可以尽早预防并且可以 解。 如何解决矿用脱水筛使用过程中排料缓慢的问题? 1、矿用脱水筛无法起动或者振幅过小,应首先考虑电机有无损坏,或者线路中的元件有无损坏,也可能当时当地的电压不足,假如这三
减少振动给料机传送带调试和安装过程中出现故障的方法 当振动机运行时,通常会有很多问题。如果振动给料机正在运行,有时会出现诸如传送带偏斜和物料飞散的问题。 那么,如何在输送机运行时减少故障的发生呢? 本文介绍了减少传送带调试和安装过程中出现故障的方法。 振动给料机的常见故障是:物料飞散,运输不稳定,输送能力降低以及输送轴磨损。 只有原因才能更好地解决问题。 安装振动进纸器时,请将其安装在平坦的底部。 如果无法确保安装地板的平整度,可以在振动给料机的进料槽周围安装材料拦截装置,以防止钻孔分散。
不锈钢三次元P站免费在线观看P站免费在线观看:优质振动筛分设备的首选 不锈钢三次元P站免费在线观看P站免费在线观看是一种高效的振动筛分设备,被广泛应用于医药、化工、食品等行业中。它可以快速的对各种形态的材料进行筛分,起到高效率的分离作用,是优质振动筛分设备的首选。下面P站免费版将详细介绍不锈钢三次元P站免费在线观看P站免费在线观看。 不锈钢三次元P站免费在线观看P站免费在线观看采用了一种独特的P站免费在线观看分技术,它采用三次元振动筛分,振动频率高、筛分效果好。它的筛分效率高,筛分精度高,可以快速的对各种形态、不同粒度的材料进行筛分。 不锈钢三次元P站免费在线观看P站免费在线观看采用了不锈钢材质,具有
方形摇摆筛是一种常见的筛分设备,广泛应用于化工、食品、冶金、建筑材料等领域。它主要是通过方形筛体的摇动,使物料在筛网上进行筛分,从而达到分离不同粒度物料的目的。市场上有各种规格和型号的方形摇摆筛,不同的型号和规格对于产量也会有所不同,那么方形摇摆筛的产量到底有多少呢?下面P站免费版来详细讲解一下。 首先,方形摇摆筛的产量受到多种因素的影响,包括筛网孔径、喂料方式、物料特性、筛分时间、振幅等等。在设计方形摇摆筛时需要考虑到以上因素,并根据实际生产需要进行合理的优化和调整,以达到最高的产量和最好的筛分
如何安装P站在线观看免费激振器? 如何安装P站在线观看免费激振器? P站在线观看免费利用振动电机激振作为振动源,使物料在筛网上被抛起,同时向前作直线运动,由此可见P站在线观看免费的激振器也是振动电机为筛分重要位置。 P站在线观看免费主要由箱体、传动轴、传动齿轮、滚动轴承、偏心块和防护罩等组成。传动轴有主动、从动之分,主动轴轴端有传动套和端盖与万向传动轴联接。激振器的作用是为振动筛提供激振力,并决定了P站在线观看免费的振动频率和振幅。那么怎么样安装P站在线观看免费激振器呢? 一、合套主动轴(同理合套从动轴) 二、压装准备工作
转斗提升机的调试顺序 P站免费版知道,斗式提升机是一种专门对物料进行垂直输送的设备,利用斗式提升机可以实现对多种物料进行高距离输送,而且效率非常高。操作者在操作斗式提升机时,需要注意的问题不少,而首先需要操作者的问题就是斗式提升机不能在负载下启动,这样的话是非常危险的情况,万万不可如此!斗式提升机在启动的时候一定要空载启动,并且启动的时候还不能急于的输送物料,要先让设备空转两三分钟之后再输送物料,这样做的目的就是为了防止一些故障的发生,如果斗式提升机在负载下启动,设备会启动的比较的困难,会增大电动
转斗式斗式输送机 NE型斗式提升机是一种常见的斗式提升机类型,这种斗式提升机已经作用于很多行业当中。出色的物料提升性能深受朋友们的青睐。而P站免费版要选购斗式提升机时,假如要选择NE型斗式提升机,就要考虑很多问题,其中,NE型斗式提升机选型原则就需要P站免费版注意。接下来,小编讲讲NE型斗式提升机选型原则。转斗式斗式输送机NE型斗式提升机选型原则:1、原始参数:物料名称,物料特性(粒度mm、松散密度t/m3、温度、湿度、粘性、磨琢性等),输送量m3/h,提升高度。 例如:型号:NE50 输送物料:石灰石
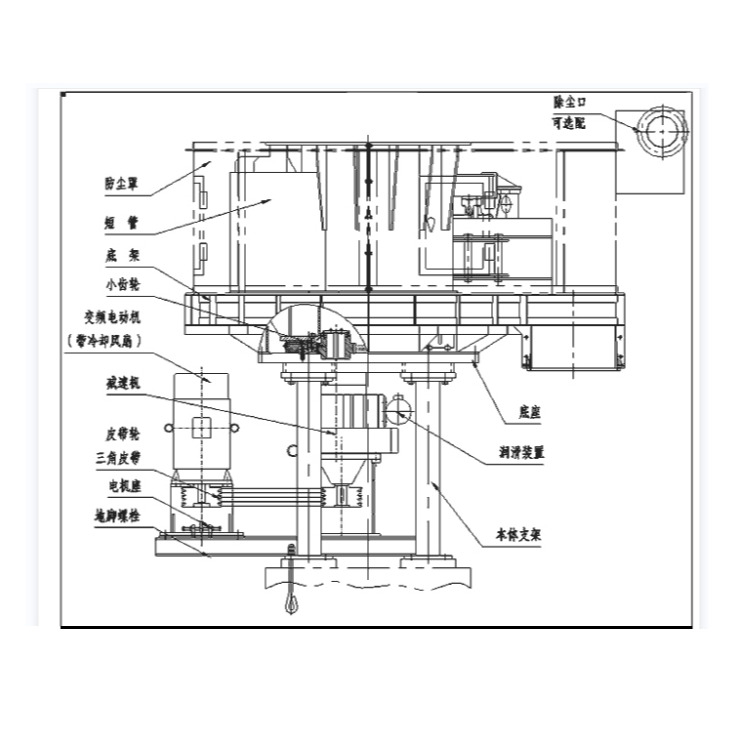
圆盘给料机的内部构造(圆盘给料机的内径是多少) 有朋友问圆盘给料机的内部构造今天针对这个问题做下分享,让您了解圆盘给料机的内部构造相关信息和答案! 圆盘给料机结构稍复杂,由圆盘,电动机,减速装置,般套,刮板和给料调节装置以及槽钢柱等构成。由悬吊的电动机,经过三角皮带,蜗轮减速机立轴带动圆盘旋转。盘套的下节与蜗轮减速机连接,上节通过槽钢柱与料仓连接,电动机则通过电动机底座固定在盘套的侧面。因此在整个圆盘给料机都悬吊在料仓的下面。喂送的物料由料仓下面的螺旋闸门出来,经由本机的入料管及活动套筒流
圆形不锈钢P站免费在线观看振动筛网架有几种结构?各结构特点(旋钮 不锈钢) 有朋友问圆形不锈钢P站免费在线观看振动筛网架有几种结构?各结构特点今天针对这个问题做下分享,让您了解圆形不锈钢P站免费在线观看振动筛网架有几种结构?各结构特点相关信息和答案! 一、老松网架:该网架结构主要是使用铆钉直接将筛网铆在网架上,其优势在于使用寿命长,结实耐用,但由于是铆钉铆的,所以更换筛网时不能实现快速更换,由于是使用铆钉,所以不适合于精细筛网;有φ600、800、1000、1200、1500、1800等,有不锈钢、碳钢、塑料等多种材质
振动电机在振动筛上使用如何调整激震力更合适(振动电机在振动筛上) 有朋友问振动电机在振动筛上使用如何调整激震力更合适今天针对这个问题做下分享,让您了解振动电机在振动筛上使用如何调整激震力更合适相关信息和答案! 振动筛的转动方向就是振动电机的转动方向, 振动方向角是振动方向与筛面的夹角是物料的抛射角,是物料的抛射角,两台电机同步、反向旋转,也就是一个向左、一个向右,当然,这两台电机必须对称的装在同一水平线上,且纵向必须装在中心线两侧,这样才能保证左右两边的偏重块力度一样,P站在线观看免费一般是水平
振动平台如何正确的选型和使用注意事项(振动平台怎么做) 有朋友问振动平台如何正确的选型和使用注意事项今天针对这个问题做下分享,让您了解振动平台如何正确的选型和使用注意事项相关信息和答案! 振动台用途特别广泛小编简单介绍几个行业,冶金 、 消失模铸造、 汽车生产线、混凝土、模拟汽车运输、灌装方面的应用、防护门、水泥人防门、耐火砖、桥梁、化工、塑料、模具、建材、汽车 等需要振实成型的行业或振动使附着在模具上的残留物质脱落。 选型要点: 1.首先要根据客户的振实需求确定是选择二维振动平台还是
振动筛均匀布料器的重要性(振动筛进料如何分布均匀) 有朋友问振动筛均匀布料器的重要性今天针对这个问题做下分享,让您了解振动筛均匀布料器的重要性相关信息和答案! 振动筛均匀布料装置,它是振动筛均匀分料装置,其特征在于振动筛的进料口上安装有一个分料板,分料板上从上边进料端至下边出料端设有均布的扇形分料槽能够均匀给料,P站在线观看免费是一款高效率、高精度的筛分设备 进料口加装伞形布料器能有效地防止物料堆积,这一特性是显而易见的。 1、进料口加装伞形布料器能有效的使物料在筛面不了均匀。防止了
烘干砂振动筛选用直线筛合适吗?(烘干沙分目振动筛) 有朋友问烘干砂振动筛选用直线筛合适吗?今天针对这个问题做下分享,让您了解烘干砂振动筛选用直线筛合适吗?相关信息和答案! 说起砂子烘干机相信大家已经不再陌生,它的出现很大程度提高的沙子干燥的速率,也节约了人力成本,重要的是用机器代替手工,不仅是产量还是质量都发生了翻天覆地的变化,人们从中也获得了收益。今天P站免费版主要了解砂子烘干机的振动筛的养护方法。 P站免费版知道振动筛是砂子烘干机的重要组成部分,缺少了它砂子烘干机的作业无法顺利进行,知道振动筛的
硅沙分级筛分选用方形摇摆筛产量大,精度高(硅砂指标) 有朋友问硅沙分级筛分选用方形摇摆筛产量大,精度高今天针对这个问题做下分享,让您了解硅沙分级筛分选用方形摇摆筛产量大,精度高相关信息和答案! 硅沙分级筛分选方形摇摆筛制造玻璃的主要原材料,简单的说就是含硅的沙,一般的沙都含硅,一般硅含量多的沙才是制玻璃的好原料。正如您所看到的不同的产量需求和不同的筛分目的选用的P站在线观看免费存在较大出入,这是其价位高低相差悬殊的直接原因。另外,不同厂家采取的经营手段、生产的硅沙分级筛分选方形摇摆筛质量等不同,
高频激振器式振动筛维修率低,寿命高的理由!(高频振动仪的作用) 有朋友问高频激振器式振动筛维修率低,寿命高的理由!今天针对这个问题做下分享,让您了解高频激振器式振动筛维修率低,寿命高的理由!相关信息和答案! 高频激振器式振动筛在使用前调整和测试各种产品的振动筛设备,以使工作更好。 各种类型的执行器通过不同的组合产生不同的机械效果。 无论是轴偏心轮还是整体偏心轮,所有单轴激励器都会驱动相应的设备进行近似圆周运动。 两个相同类型和大小的两个双轴致动器或两个单轴振动器并排放置。 然后,烟囱沿相反
石膏粉是五大凝胶材料之一,在国民经济中占有重要的地位,广泛用于建筑、建材、工业模具和艺术模型、化学工业及农业、食品加工和医药美容等众多应用领域,是一种重要的工业原材料。 石膏粉的应用越来越广泛,不止局限于早期的粉笔、腻子、豆腐及工艺品,现在已经扩展到很多行业,并带动了许多新兴产业的发展。伴随着石膏粉应用行业的发展,各种石膏粉生产厂家也越来越多,石膏粉振动筛' target='_blank'超声波振动筛分机的需求量也增多,下面就由新乡大汉振动有限公司带您了解一下石膏粉超声波振动
振动筛在煤矿生产中的应用主要是粗略的处理量大的筛分,在煤气生产工艺中同样要用到振动筛分机, 并且用到的精细筛分设备用于处理25MM以下的煤粉。 1煤处理工艺 两段式煤气发生炉分上、下两段煤气,煤块过细将增大炉膛的阻力,上段煤气无法排出,所以需将原煤进行筛分处理,筛分的过程主要是将原煤通过震动筛筛除25mm以下的煤粉,经处理后的煤通过输送带送入煤气发生炉煤仓。在煤的筛分过程中会产生粉尘,建设方采用大风量引风机收集粉尘,废气通过旋风、水膜二级除尘后排放。 2煤气生产工艺 两段式煤气发生炉为
常见的带式输送机出现故障的处理方法(带式输送机包括哪些装置和主要部件) 带式输送机在我国具有古老的历史,很久以前就是用输送机的原型——高辊和水电梯进行工作.能够连续的、在的线上工作的,就是输送机原型.现代输送机能够承受很大的压力、并且运送的距离也长.那么在P站免费版生活中,带式输送机出现故障该怎么办呢? 在输送过程中还可以完成多个工序,因而得到广泛应用.带式输送机是一种连续输送物料的物料搬运机械,也称连续带式输送机.带式输送机可以水平倾斜.而垂直运输,也可以形成空间运输线,输电线路通常是固定的.
星型卸料器外壳破损怎么办(星形卸料器) 今天P站免费版机械的小编给大家介绍下 星型卸料器外壳破损怎么办呢,下面开始给大家介绍下: 星型卸料器器壁在总是卸料摩擦外壳会磨破,造成漏料。卸料器是各种除尘设置装备部署排灰工艺中非常紧张的一个构成部门,其包管了密封仓和一连或中断排灰的作用;在高负电除尘器灰斗保存肯定高度的灰柱具有明显的密封作用.其呆板有布局紧凑、造型雅观、利用方便、运转安稳、噪音低等一系列的长处。星型卸灰阀在利用上也常常会出现漏料的题目,这是由于叶轮的卸料器器壁毗连处漏洞太大,卸料时容易漏
影响有轴螺旋输送机的输送能力的原因是什么(曲轴的轴向窜动会破坏曲柄连杆机构的) 影响有轴螺旋输送机的输送能力的原因是什么 基于螺旋输送机厂家生产的有轴螺旋输送机的输送量大,输送效率高,受到了广大客户的喜爱,为厂家的首选机械产品。下面小编给大家介绍下,如果有轴螺旋输送机输送能力变差了,是什么原因引起的。 和其它粮食输送机相比,有轴螺旋输送机的输送效率更高,这种有轴螺旋输送机更加适合煤炭行业、电力行业等输送量较大的输送行业。除此之外,有轴螺旋输送机的环保性能也是一个非常大的优势,非常符合现在
怎样计算螺旋输送机的输送量(怎样计算螺旋输出电流) 上章P站免费版介绍了怎样选择螺旋输送机的型号,其中螺旋输送机的输送量也在考虑的范围内,这章,小田给大家介绍下怎么样计算螺旋输送机的输送量。 螺旋输送机的输送量怎么计算需要考虑到螺旋叶片直径、螺旋轴转速、电机功率等方面的问题,另外和物料的物理性质、给料的方式有关,还有装填系数的要求也不一样也会影响输送量。 1、螺旋直径的计算: 式中Q----输送量,t/h; K----物料特性系数; ψ----填充系数; C----倾角系数。 按上式
振动行业小知识之振动给料机的给料过程解析 给料机一般可以跟振动筛、输送机等设备一起用,这样可以连成一条生产线,帮助相关行业节省人力,减少人工开支。今天主要跟大家介绍一下振动给料机的给料过程,现在跟小编一起来看一下吧! 振荡给料机又称振荡喂料机,是使用振荡器中的偏疼块旋转产生离心力,使筛厢、振荡器等可动部分作强制的接连的圆或近似圆的运动。 振荡给料机是由给料槽体、激振器、绷簧支座、传动装置等组成。槽体振荡给料的振荡源是激振器,激振器是由两根偏疼轴(主、被迫)和齿轮副组成,由电动机通过三角带
Copyright(C) 豫ICP备18015440号