当前位置: P站免费版振动筛厂家 > 产品中心 > 重型矿用振动筛 > 正文

适用物料:食品、饮料、医药、化工、塑料、磨料、陶瓷、造纸、纳米
价格区间:100000-800000
处理能力:100-1000t/h
产品别名:P站在线观看免费,等厚振动筛
索要优惠报价
销售热线:
13782587121
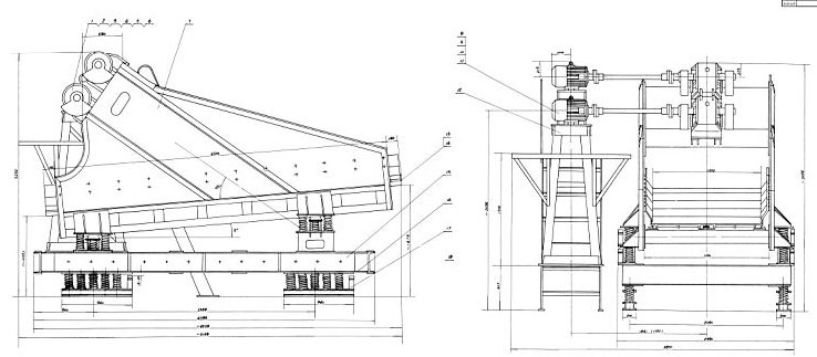
直线等厚振动筛机筛面由不同倾角的多区段(一般为三段)组成,使筛分物料在各区段呈近似等厚分布,有利于物料在筛面上的输送、分层和透筛。
采用法兰式激振器,由两台电机外拖动作反方向同步运动,使入料端到出料端物料厚度近似相同,各段筛面上物料量与流速比值稳定,料层均衡筛分效率显著提高,比相同有效面积振动筛处理可提高1-2倍,特别对于中细物料分级效果更为显著。
直线等厚振动筛是由筛箱、法兰式激振器、隔振系统、传动系统等组成。筛面由不同倾角的多区段(一般为三段)组成,使筛分物料在各区段呈近似等厚分布,有利于物料在筛面上的输送、分层和透筛。
| 型 号 | 筛面规格(mm×mm) | 分级点 | 振幅mm | 振频r/min | 处理量t/h | 筛分效率% | 功率KW | 筛面倾角(o) | ||
| 头部 | 中部 | 尾部 | ||||||||
| SDH-2060 | 2000×6000 | 5 | 10-15 | 850 | 150-200 | 85 | 2×15KW | 15 | 10 | 5 |
| SDH-2575 | 2500×7500 | 5-20 | 8-10 | 800 | 200-500 | 85 | 2×30KW | 15 | 10 | 5 |
| SDH-3090 | 3000×9000 | 5-20 | 8-10 | 800 | 300-800 | 85 | 2×45KW | 15 | 10 | 5 |
Copyright(C) 豫ICP备35991994号