当前位置: P站免费版振动筛厂家 > 新闻资讯 > 行业新闻 > 正文
浏览次数:
P站在线观看免费工作原理
P站在线观看免费为双振动电机驱动。当两台振动电机做同步、反向旋转时,其偏心块所产生的激振力在平行于电机轴线的方向相互抵消,在垂直于电机轴的方向叠为一合力,因此筛机的运动轨迹为一直线。两电机轴相对筛面在垂直方向有一倾角,在激振力和物料自重力的合力作用下,物料在筛面上被抛起跳跃或向前作直线运动,从而达到对物料进行筛选和分级的目的。适用于粒度在0.074—5mm,含水量小于7%,无粘性的各种干式粉状或颗粒状物料的筛分。大给料粒度不大于10mm.。
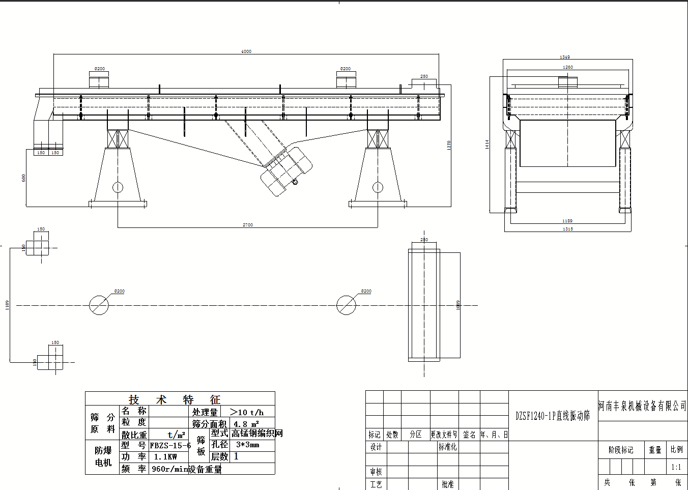
P站在线观看免费图纸

工作特点
该产品筛分精度高、处理量大、结构简单、耗能少、噪音低、筛网使用寿命长、密封性好、无粉尘溢散、维修方便、可用于流水线生产中的自动化作业。
主要适用行业
该产品广泛适用于化工、食品、塑料、医药、冶金、玻璃、建材、粮食、化肥、磨料、陶瓷等行业中干式粉状物料的筛分。
部分技术参数
| 型 号 | DZSF-520 | DZSF-525 | DZSF-1020 | DZSF-1025 |
| 公称尺寸 mm | 500×2000 | 500×2500 | 1000×2000 | 1000×2500 |
| 物料粒度 mm | 0.074-10 | 0.074-10 | 0.074-10 | 0.074-10 |
| 筛面倾角 | 1°-7° | 1°-7° | 1°-7° | 1°-7° |
| 振 幅 | 3-4.5 | 3-4.5 | 3-4.5 | 3-4.5 |
| 层 数 | 1-6 | 1-6 | 1-6 | 1-6 |
| 功 率 Kw | 2×(0.4-0.75) | 2×(0.4-0.75) | 2×(0.4-0.75) | 2×(0.4-1.1) |
注意:DZSF系列P站在线观看免费是一种全封闭型的直线振动型振动筛,根据客户的要求不同,可以根据用户的不同要求定制设备.如需购买设备请咨询公司服务人员,此表参数仅供选型参考,详细情况与厂家沟通,以实际沟通结果为准!
结构说明

P站在线观看免费结构图
本筛机主要由筛箱、筛框、筛网、振动电机、电机台座、减振弹簧、支架等组成。
1、筛箱:由数种厚度不同的钢板焊制而成,具有一定的强度和刚度,是筛机的主要组成部分。
2、筛框:由松木或变形量较小的木材制成,主要用来保持筛网平整,达到正常筛分。
3、筛网:有低碳钢、黄铜、青铜、不锈钢丝等数种筛网。
4、振动电机(使用与维修方法详见振动电机使用说明书)。
5、电机台座:安装振动电机,使用前连接螺钉必须拧紧,特别是新筛机试用前三天、必须反复紧固,以免松动造成事故。
6、减振弹簧:阻止振动传给地面,同时支持筛箱的全部重量,安装时,弹簧必须垂直与地面。
7、支架:由四个支柱和两个槽钢组成,支持着筛箱,安装时支柱必须垂直与地面,两支柱下面的槽钢应相互平行。
安装调试和使用

该设备应固定在专用地基上,由预埋螺栓固定。如不打专用地基,应在工作台与设备机座之间敷设防振橡胶板,在使用前必须给设备配置安全可靠的接地保护线.。
注意:设备安装到位后,开机前必须将运输时用来固定筛体和机座的装置拆掉。
新筛机安装好以后,应按以下要求检查:
1、检查振动电机绕组对地的绝缘电阻,若<20MΩ必须烘干后方能使用。
2、筛体和机座上、下弹簧座圈上,弹簧应完全垂直嵌入弹簧座圈,以保证筛体平衡,筛机的振动部分切勿与机外其它物体有任何硬性连接或接触。
3、闭合电源开关,确认振动电机同步反向旋转,进行10-20分钟空运转,设备在运行时如有异常声音,应迅速关机进行检查处理。设备运转正常后,可将少量需筛分的物料通过进料口设入筛机内,确认物料向出料口方向行进,然后逐渐增加到所需和所能承受的给料量。
4、筛分物料时,应在进料口将物料均匀投入,保证筛面上的物料均匀分布。物料下落时,不得有大的冲击,以免损坏筛网,特殊情况下(如物料粒度相差悬殊大、物料比重大等)应在进料口上加一层较粗的筛网作缓冲。
5、用户可根据筛机的层数,物料比重不同来增减筛机的激振力(通过调节振动电机两端偏心重锤的夹角来增减激振力),使筛机达到佳的筛分效果。
6、设备在停机时产生瞬间的共振区,此时振幅和噪声会明显增大,属正常现象,设备在开停机前,筛面上不得有存留物料,筛网需经常检查是否张紧、破损,如有破损要即时更换。
Copyright(C) 豫ICP备35991994号